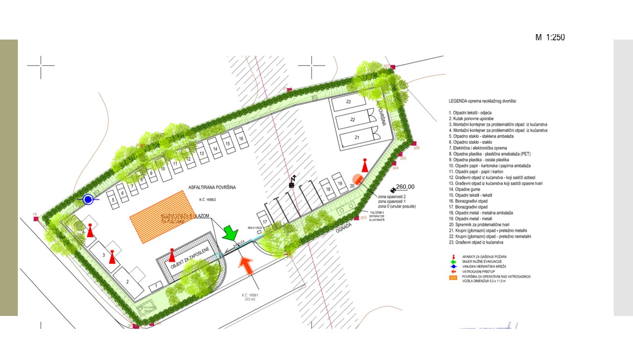
Informativno-obrazovna radionica o projektu Reciklažno dvorište Slunj




































KOMUNALNO DRUŠTVO LIPA d.o.o.
za obavljanje komunalnih djelatnosti
Petra Svačića 5, Slunj
OIB: 10731123787
tel/fax: +385 47 777 790
E- mail:
Radno vrijeme ureda:
Pon-Pet 07:00-15:00
Obračun komunalnih usluga:
+385 47 414 008
Radno vrijeme ureda:
Pon-Pet 07:00-11:00
Voditelj upravljanja stambeno
poslovnim zgradama:
+385 47 777 017
+385 98 872 309
Radno vrijeme ureda:
Pon-Pet 07:00-15:00
Dežurstvo za ukope
rukovoditelj - poslovođa
+385 99 222 2191
Voditelj groblje Slunj:
+385 99 369 9155
Radno vrijeme ureda:
Pon-Pet 07:00-15:00
Groblja Lađevac, Cvitović i Nikšić:
+385 99 369 9155
Radno vrijeme ureda:
Pon-Pet 07:00-15:00
Informativno-obrazovna radionica o projektu Reciklažno dvorište Slunj


































